


























Apartament cu vedere spre PISCINA in bloc finalizat Mamaia Sat
Mamaia-Sat
67.000€ + TVA
Camere
2
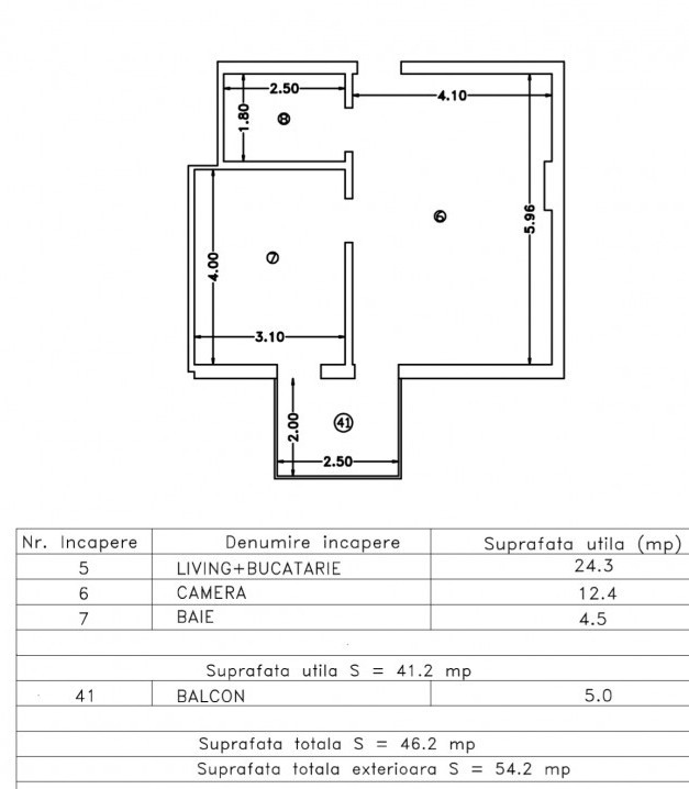
Suprafata utila
41.04 mp
Suprafata construita
50 mp
Etaj
Etaj 4
Bai
1
An constructie
2025
- ID:P5615
- Nr. camere:2
- Nr. dormitoare:1
- S. utila:41.04 mp
- S. balcoane:7.60 mp
- S. construita:50.00 mp
- Comp.:Semidecomandat
- Confort:1
- Etaj:Etaj 4
- Nr. bucatarii:1
- Nr. bai:1
- An constructie:2025
- Structura:Beton
- Tip imobil:Bloc
- Regim inaltime:P+5
- Orientare:Vest
- Clasa energetica:A
Descriere
Apartament LUMINOS si cu vedere la Lacul Siutghiol.
Apartament de vanzare in Mamaia Nord, in Xenero Residence, complex finalizat in proportie de 100%, cu predare imediata!
Această proprietate este ideala pentru locuinta permanenta sau de vacanta si combină confortul urban cu beneficiile apartament intr-un ansamblu cu faclitati de vacanta.
Daca iti doresti un apartament unde sa beneficiezi de suprafata vitrata impresionanta si liniste, acesta ar putea fi varianta cea mai potrivita!
🍽️ Bucătărie Deschisă: Conceptul de bucătărie deschisă oferă un mediu perfect pentru gătit și socializare cu familia și prietenii.
🛏️ Dormitor Spațios: Dormitorul are spațiu suficient pentru mobilier personalizat.
Suprafata construita: 50 mp
Suprafata utila cu balcon: 48,64 mp
Suprafata balcon tip terasa: 7,6 mp
Complexul rezidențial Xenero Residence oferă, de asemenea, o serie de facilități și beneficii:
Piscina
Aleei de promenada
🚗 Parcare Subterană privata
Costul unui loc de parcare este de 12000 euro
Apartamentele se predau finisate la CHEIE cu finisaje complete!
Pozele afisate sunt cu titlul de prezentare si sunt realizate in apartamentele deja finalizate din cadrul Ansamblului.
Prețurile afișate nu conțin TVA
Citeste mai mult
Apartament de vanzare in Mamaia Nord, in Xenero Residence, complex finalizat in proportie de 100%, cu predare imediata!
Această proprietate este ideala pentru locuinta permanenta sau de vacanta si combină confortul urban cu beneficiile apartament intr-un ansamblu cu faclitati de vacanta.
Daca iti doresti un apartament unde sa beneficiezi de suprafata vitrata impresionanta si liniste, acesta ar putea fi varianta cea mai potrivita!
🍽️ Bucătărie Deschisă: Conceptul de bucătărie deschisă oferă un mediu perfect pentru gătit și socializare cu familia și prietenii.
🛏️ Dormitor Spațios: Dormitorul are spațiu suficient pentru mobilier personalizat.
Suprafata construita: 50 mp
Suprafata utila cu balcon: 48,64 mp
Suprafata balcon tip terasa: 7,6 mp
Complexul rezidențial Xenero Residence oferă, de asemenea, o serie de facilități și beneficii:
Piscina
Aleei de promenada
🚗 Parcare Subterană privata
Costul unui loc de parcare este de 12000 euro
Apartamentele se predau finisate la CHEIE cu finisaje complete!
Pozele afisate sunt cu titlul de prezentare si sunt realizate in apartamentele deja finalizate din cadrul Ansamblului.
Prețurile afișate nu conțin TVA
Specificatii
Curent
Apa
Canalizare
Gaz
Centrala proprie
Izolatie Exterior
Vopsea lavabila
Parchet
Gresie
Ferestre PVC
Usa intrare Metal
Usa interior Lemn
Terasa
Bucatarie Nemobilata
Apometre
Contor gaz
Nemobilat
Interfon
Lift
Curte
Piscina exterioara
Bogdan Anca
0720090392
Esti interesat de aceasta proprietate ?