











FINALIZAT 2 camere luminos si cu vedere la MARE, zona Infinity Beach
Mamaia
89.900€
Camere
2
Suprafata utila
55 mp
Suprafata construita
68.38 mp
Etaj
Etaj 4
Bai
1
An constructie
2024
- ID:P5345
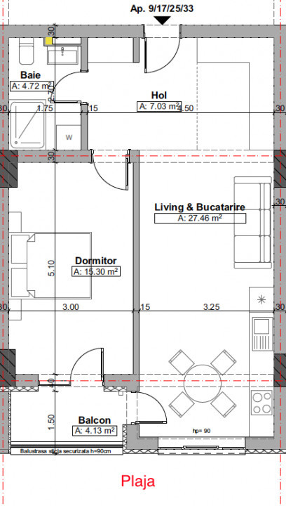
- Nr. camere:2
- Nr. dormitoare:1
- S. utila:55.00 mp
- S. balcoane:4.13 mp
- S. construita:68.38 mp
- Comp.:Decomandat
- Confort:Lux
- Etaj:Etaj 4
- Nr. bucatarii:1
- Nr. bai:1
- Nr. balcoane:1
- An constructie:2024
- Regim inaltime:P+8
- Orientare:Sud-Est
Descriere
Apartament cu 2 camere de vanzare in Mamaia Nord, in una dintre cladirile remarcabile alea zonei, pozitionata la 100 m de plaja pe strada D10 in zona LIDl - Infinity Beach - Inception by the Sea
Imobil finalizat la cheie, cu fatada ventilata, pardoseli din marmura, tencuieli decorative si tavane tip barisol.
Este varianta ideala pentru cei care doresc sa locuiasca permanent pe malul marii sau isi doresc un apartament de vacanta pentru familie.
Apartamentul propus pentru vanzare face parte dintr-un grup de 6 apartament din cadrul etajului 4 al imobilului INCEPTION BY THE SEA, pozitionat catre Est, foarte luminos si cu vedere la mare!
Vrei sa fi sigur de investitia ta? Alege unul din apartamentele din cadrul acestui imobil si beneficiezi de garantia unei executii conforme si durabile.
Suprafata construita: 68,41 mp
Suprafata Utila cu balcon: 59 mp
Suprafata utila: 54,51 mp
Suprafata balcon: 4,13 mp
Citeste mai mult
Imobil finalizat la cheie, cu fatada ventilata, pardoseli din marmura, tencuieli decorative si tavane tip barisol.
Este varianta ideala pentru cei care doresc sa locuiasca permanent pe malul marii sau isi doresc un apartament de vacanta pentru familie.
Apartamentul propus pentru vanzare face parte dintr-un grup de 6 apartament din cadrul etajului 4 al imobilului INCEPTION BY THE SEA, pozitionat catre Est, foarte luminos si cu vedere la mare!
Vrei sa fi sigur de investitia ta? Alege unul din apartamentele din cadrul acestui imobil si beneficiezi de garantia unei executii conforme si durabile.
Suprafata construita: 68,41 mp
Suprafata Utila cu balcon: 59 mp
Suprafata utila: 54,51 mp
Suprafata balcon: 4,13 mp
Specificatii
Curent
Apa
Canalizare
Gaz
CATV
Centrala proprie
Calorifere
Aer conditionat
Izolatie Exterior
Vopsea lavabila
Gresie
Ferestre PVC
Usa intrare Metal
Usa interior Lemn
Apometre
Contor gaz
Videointerfon
Bogdan Anca
0720090392
Esti interesat de aceasta proprietate ?