



























FINALIZAT! Apartament 3 camere cu terasă spațioasă – Primavera Campus, Constanța
Constanta, Tomis Nord
174.255€ + TVA
Camere
3
Suprafata utila
77.15 mp
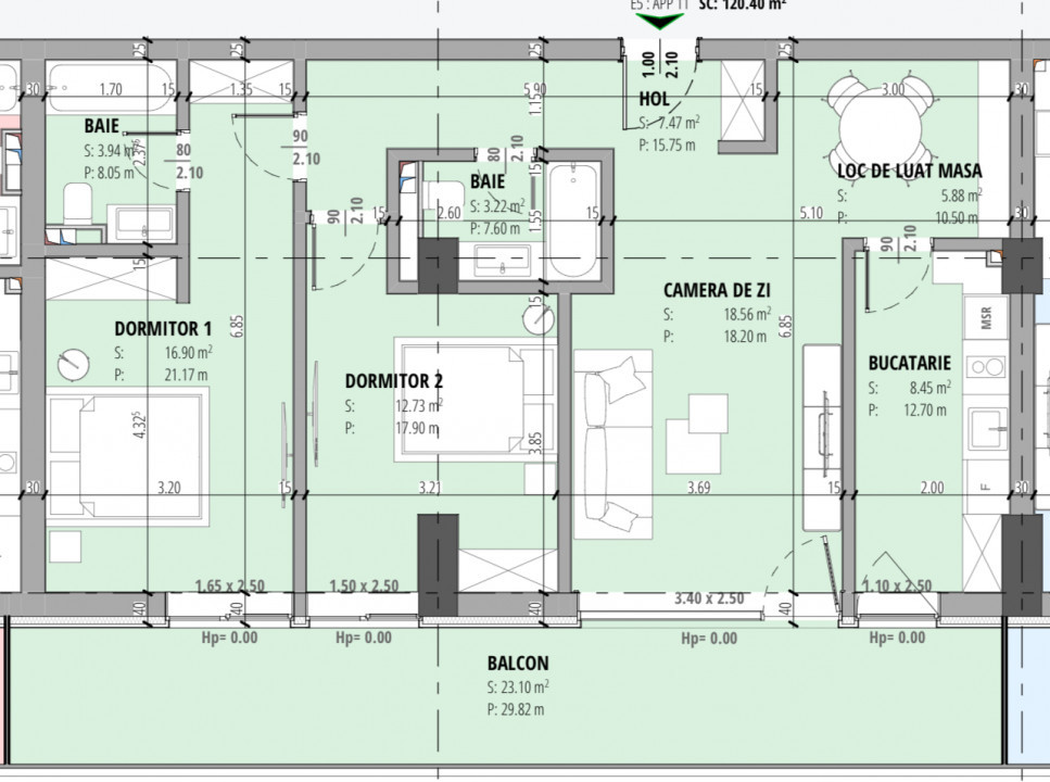
Suprafata construita
120.40 mp
Etaj
Etaj 6
Bai
1
An constructie
2023
- ID:P5573
- Nr. camere:3
- Nr. dormitoare:2
- S. utila:77.15 mp
- S. balcoane:23.10 mp
- S. construita:120.40 mp
- Comp.:Decomandat
- Etaj:Etaj 6
- Nr. bucatarii:1
- Nr. bai:1
- Pret parcare:20.000€ + TVA
- Pret garaj:20.000€ + TVA
- An constructie:2023
- Structura:BCA
- Tip imobil:Bloc
- Regim inaltime:S+D+P+8
- Orientare:Sud
- Clasa energetica:A
Descriere
Apartament 3 camere de vanzare cu terasă spațioasă – Primavera Campus, Constanța
Cauți un apartament de 3 camere cu terasă generoasă, dormitoare spațioase și o poziție excelentă?
Primavera Campus îți oferă tot ce ai nevoie, într-un ansamblu rezidențial nou, exclusivist, situat chiar la intrarea în Stațiunea Mamaia, lângă Universitatea Ovidius și University Park.
Detalii apartament:
Suprafață construită: 120,40 mp
Suprafață utilă: 77,15 mp
Terasa: 23,10 mp
Compartimentare eficientă: bucătărie închisă, 2 dormitoare, 2 băi
Proiectat pentru confort și funcționalitate, acest apartament este potrivit atât pentru locuit permanent, cât și pentru investiție.
Dotări și beneficii ale ansamblului Primavera Campus:
Structură de rezistență: planșee, stâlpi/diafragme și grinzi din beton armat
Zidărie termoizolantă din BCA
Pereți și tavane finisate cu glet, pregătite pentru vopsea lavabilă
Tâmplărie PVC cu geam tripan și barieră termică
Încălzire prin pardoseală în întregul apartament
Sisteme individuale de ventilare cu recuperare de căldură în fiecare cameră, pentru aer proaspăt constant și control al umidității
Ușă metalică la intrare
Panouri fotovoltaice pentru eficiență energetică sporită
Două lifturi moderne și două scări pentru acces rapid și confortabil
Predare apartamente: IMEDIAT
📞 Contactează-ne pentru detalii suplimentare și programarea unei vizionări!
Citeste mai mult
Cauți un apartament de 3 camere cu terasă generoasă, dormitoare spațioase și o poziție excelentă?
Primavera Campus îți oferă tot ce ai nevoie, într-un ansamblu rezidențial nou, exclusivist, situat chiar la intrarea în Stațiunea Mamaia, lângă Universitatea Ovidius și University Park.
Detalii apartament:
Suprafață construită: 120,40 mp
Suprafață utilă: 77,15 mp
Terasa: 23,10 mp
Compartimentare eficientă: bucătărie închisă, 2 dormitoare, 2 băi
Proiectat pentru confort și funcționalitate, acest apartament este potrivit atât pentru locuit permanent, cât și pentru investiție.
Dotări și beneficii ale ansamblului Primavera Campus:
Structură de rezistență: planșee, stâlpi/diafragme și grinzi din beton armat
Zidărie termoizolantă din BCA
Pereți și tavane finisate cu glet, pregătite pentru vopsea lavabilă
Tâmplărie PVC cu geam tripan și barieră termică
Încălzire prin pardoseală în întregul apartament
Sisteme individuale de ventilare cu recuperare de căldură în fiecare cameră, pentru aer proaspăt constant și control al umidității
Ușă metalică la intrare
Panouri fotovoltaice pentru eficiență energetică sporită
Două lifturi moderne și două scări pentru acces rapid și confortabil
Predare apartamente: IMEDIAT
📞 Contactează-ne pentru detalii suplimentare și programarea unei vizionări!
Specificatii
Curent
Apa
Canalizare
Gaz
Curent trifazic
Centrala imobil
Incalzire pardoseala
Izolatie Exterior
Ferestre PVC
Usa intrare Metal
Terasa
Dressing
Apometre
Contor gaz
Nemobilat
Interfon
Videointerfon
Lift
Bogdan Anca
0720090392
Esti interesat de aceasta proprietate ?