



























Oportunitate! Apartament 3 camere, finalizat, Campusul Universitar Constanta
Constanta, Tomis Nord
172.791€ + TVA
Camere
3
Suprafata utila
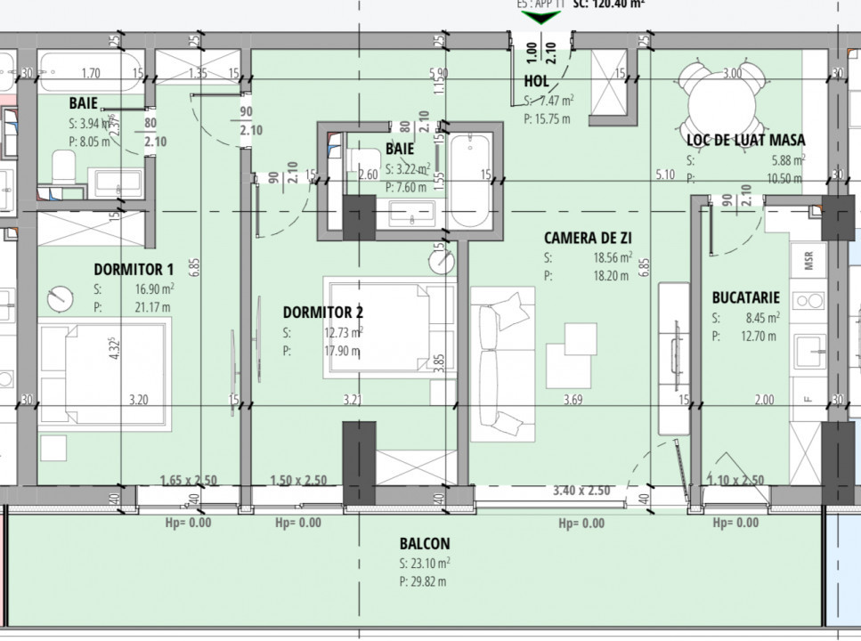
77.15 mp
Suprafata construita
120.40 mp
Etaj
Etaj 5
Bai
1
An constructie
2023
- ID:P5574
- Nr. camere:3
- Nr. dormitoare:2
- S. utila:77.15 mp
- S. balcoane:23.10 mp
- S. construita:120.40 mp
- Comp.:Decomandat
- Etaj:Etaj 5
- Nr. bucatarii:1
- Nr. bai:1
- Pret parcare:20.000€ + TVA
- Pret garaj:20.000€ + TVA
- An constructie:2023
- Structura:BCA
- Tip imobil:Bloc
- Regim inaltime:S+D+P+8
- Orientare:Sud
- Clasa energetica:A
Descriere
Ești în căutarea unui apartament de 3 camere cu terasa, dormitoare spațioase, vedere excelenta ?
Primavera Campus este ceea ce cauți! Bloc nou exclusivist, chiar la intrare in Statiunea Mamaia si langa Univesitatea Ovidius, chiar langa UNIVERSITY PARK.
Aceasta varianta dispune de o suprafata construita de 120,40 mp, din care suprafata utila fiind de 77,15 mp, la care se adauga o terasa generosa de 23.10mp.
Compartimentarea este una favorabila, bucatarie inchisa, 2 dormitoare si 2 bai.
Beneficiile care va vor fi oferite de ansamblul Primavera Campus sunt urmatoarele:
-Structura de rezistenta este compusa din plansee, stalpi/diafragme si grinzi din beton;
- Pereti de zidarie termoizolanta din BCA;
- Finisajul interior al peretilor si tavanelor este realizat din glet pregatit pentru aplicarea de vopsele lavabile;
- Tamplaria este cu profil de PVC cu rupere de punte termica si geam termoizolant tripan;
- Incalzirea apartamentului se va face cu ajutorul incalzirii prin pardoseala pe intreaga cladire cu ajutorul centralelor pe gaz;
-Fiecare camera de zi si fiecare dormitor vor fi dotate cu centrala de purificare a aerului (schimbatoare de caldura) care asigura aport de aer proaspat fara pierderi de energie, impiedica patrundera prafului in apartament si regleaza umiditatea din aer.
- Usa de acces apartament metalica;
-Panouri fotovoltaice;
- Etaje subterane de parcari care insumeaza un numar de 130 de locuri la 97 de apartamente;
- Blocul va fi prevazut cu 2 lift-uri de ultima generatie si 2 scari.
Predarea apartamentelor poate avea loc imediat.
Pretul unui loc de parcare este de 20000 euro + TVA
Pretul afisat nu contine TVA!
Citeste mai mult
Primavera Campus este ceea ce cauți! Bloc nou exclusivist, chiar la intrare in Statiunea Mamaia si langa Univesitatea Ovidius, chiar langa UNIVERSITY PARK.
Aceasta varianta dispune de o suprafata construita de 120,40 mp, din care suprafata utila fiind de 77,15 mp, la care se adauga o terasa generosa de 23.10mp.
Compartimentarea este una favorabila, bucatarie inchisa, 2 dormitoare si 2 bai.
Beneficiile care va vor fi oferite de ansamblul Primavera Campus sunt urmatoarele:
-Structura de rezistenta este compusa din plansee, stalpi/diafragme si grinzi din beton;
- Pereti de zidarie termoizolanta din BCA;
- Finisajul interior al peretilor si tavanelor este realizat din glet pregatit pentru aplicarea de vopsele lavabile;
- Tamplaria este cu profil de PVC cu rupere de punte termica si geam termoizolant tripan;
- Incalzirea apartamentului se va face cu ajutorul incalzirii prin pardoseala pe intreaga cladire cu ajutorul centralelor pe gaz;
-Fiecare camera de zi si fiecare dormitor vor fi dotate cu centrala de purificare a aerului (schimbatoare de caldura) care asigura aport de aer proaspat fara pierderi de energie, impiedica patrundera prafului in apartament si regleaza umiditatea din aer.
- Usa de acces apartament metalica;
-Panouri fotovoltaice;
- Etaje subterane de parcari care insumeaza un numar de 130 de locuri la 97 de apartamente;
- Blocul va fi prevazut cu 2 lift-uri de ultima generatie si 2 scari.
Predarea apartamentelor poate avea loc imediat.
Pretul unui loc de parcare este de 20000 euro + TVA
Pretul afisat nu contine TVA!
Specificatii
Curent
Apa
Canalizare
Gaz
Curent trifazic
Centrala imobil
Incalzire pardoseala
Izolatie Exterior
Ferestre PVC
Usa intrare Metal
Terasa
Dressing
Apometre
Contor gaz
Nemobilat
Interfon
Videointerfon
Lift
Bogdan Anca
0720090392
Esti interesat de aceasta proprietate ?