








4 camere - vanzare, Faleza Nord, dotari top, direct proprietar
Constanta, Faleza Nord
269.900€
Camere
4
Suprafata utila
94 mp
- ID:P5302
- Nr. camere:4
- S. utila:94.00 mp
Descriere
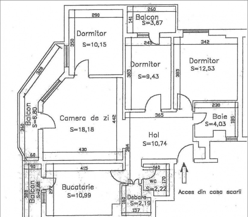
- Apartament 4 camere, Faleza Nord, pozitionare S-E, al 2-lea rand de blocuri, 150m pana la plaja
- finisaje exceptionale - renovare totala finalizata 2020 (instalatii sanitare electrice, termice,
schimbate in totalitate)
- Scara blocului renovata 2024
- Loc parcare
- Izolatie exterioara, inclusiv soclu bloc 10 cm, Izolatie subsol
- Instalatii sanitare conexiuni separate, apa si canalizare, filtru de apa potabila
- Statie dedurizare si filtre anti calcar pe coloanala principala pe tot apartamentul
- Boxa cu subsol inalt
- mobila realizata pe comanda integral
- 3 balcoane, din care 2 extensii, unul inchis total (cel mare de 7mp)
- camerele copiilor, ambele paturi au extensie retractabila
- 4 gradinite si 2 scoli in perimetrul de 500 mp
Citeste mai mult
- finisaje exceptionale - renovare totala finalizata 2020 (instalatii sanitare electrice, termice,
schimbate in totalitate)
- Scara blocului renovata 2024
- Loc parcare
- Izolatie exterioara, inclusiv soclu bloc 10 cm, Izolatie subsol
- Instalatii sanitare conexiuni separate, apa si canalizare, filtru de apa potabila
- Statie dedurizare si filtre anti calcar pe coloanala principala pe tot apartamentul
- Boxa cu subsol inalt
- mobila realizata pe comanda integral
- 3 balcoane, din care 2 extensii, unul inchis total (cel mare de 7mp)
- camerele copiilor, ambele paturi au extensie retractabila
- 4 gradinite si 2 scoli in perimetrul de 500 mp
Specificatii
Alexandru Dogaru
0734759150
Esti interesat de aceasta proprietate ?