









Vând apartament 4 camere decomandate, Faleza Nord Constanța, Strada Unirii
Constanta, Faleza Nord
185.000€
- ID:P5303
Descriere
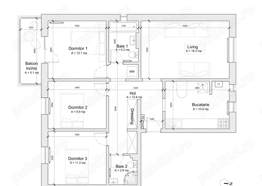
Vând apartament 4 camere decomandate, Faleza Nord Constanța, Strada Unirii, la doar 7 minute de mers pe jos până la plajă amenajata și Stațiunea Mamaia.Caracteristici generale: Suprafață utilă: 84 mp Etaj: 3 din 4, într-un bloc intim, cu doar 10 apartamente Orientare ideală: Est-Vest pentru cele 3 dormitoare (luminoase și aerisite), Vest pentru living și Nord pentru bucătărie Balcon inchisDotări și finisaje: Centrala termică pe gaz, cu calorifere din fontă, teava PPR Geamuri termopan bicameral Parchet lamelar în toate camerele, gresie și faianță în băi Uși interioare din stejar masiv Se vinde semimobilat ideal pentru mutare rapidă sau personalizare după gust.Zona Faleza Nord una dintre cele mai căutate și liniștite zone din Constanța. Apartamentul este perfect pentru o familie sau ca investiție, având acces rapid la mare, restaurante, școli și mijloace de transport.Pentru mai multe detalii sau programare vizionare, nu ezitați să mă contactați!
Citeste mai mult
Specificatii
Alexandru Dogaru
0734759150
Esti interesat de aceasta proprietate ?