






































Casă elegantă 4 camere în zona Hanul Piraților – 236 mp, teren 350 mp, mobilata
Mamaia-Sat
550.000€
Camere
5
Suprafata utila
194.70 mp
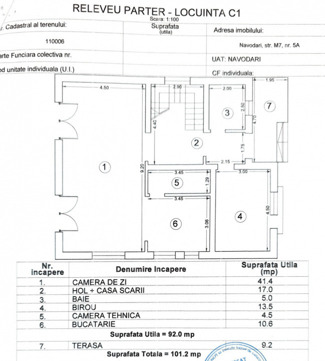
Suprafata construita
236 mp
Bai
3
An constructie
2021
- ID:P5591
- Nr. camere:5
- Nr. dormitoare:4
- S. utila:194.70 mp
- S. terase:17.70 mp
- S. construita:236.00 mp
- S. teren:350.00 mp
- Nr. bucatarii:1
- Nr. bai:3
- Nr. balcoane:2
- Nr. parcari:4
- Front stradal:13.40 m
- Nr. fronturi:1
- An constructie:2021
- Structura rezistenta:Beton
- Regim inaltime:P+1
- Clasa energetica:A
Descriere
Casă - Vila de vânzare – Mamaia Sat / Mamaia Nord – Zonă Hanul Piraților - Zona asfaltată recent!
Locație excelentă – între Hanul Piraților și Hanul cu Pește, aproape de Profi și Mega Image, într-o zonă liniștită și ușor accesibilă.
🔹 Suprafață teren: 350 mp
🔹 Suprafață construită desfășurată: 236 mp
🔹 Compartimentare:
La parter: Living spațios, bucatarie, camera tehnica(camera provizii), baie, dormitor sau birou, terasa, hol si casa scarii de acces catre etaj.
La etaj: 3 dormitoare( unul matrimonial cu baie proprie,dressing si balcon), baie, hol
🔹 Dotări și finisaje:
Mobilată complet cu mobilier import Spania și Italia, utilată cu electrocasnice premium SMEG, finisaje interioare cu piatră naturală, ceramica de calitate superioara, usi de interior import Spania, tencuială decorativă exterioară de calitate, izolație exterioară eficientă, acoperiș din țiglă ceramică.
🔹 Sisteme și echipamente moderne:
Sistem de răcire cu aer condiționat pe fiecare etaj.
Sistem de detectie si protecție la incendiu
Sistem automat de irigare pentru grădină
Sistem de supraveghere video
Structura de rezistenta cu fundatie pe perna de piatra, stalpi si grinzi cu zidarie pe cadre, placa peste parter si peste etaj! Posibilitate de extindere pe inaltime.
✅ Casă ideală pentru locuire permanentă sau investiție turistică, într-o zonă aflată în continuă dezvoltare, la câteva minute de mers pe jos de plajă și restaurante.
📞 Pentru mai multe detalii sau programarea unei vizionări, vă stăm la dispoziție!
Citeste mai mult
Locație excelentă – între Hanul Piraților și Hanul cu Pește, aproape de Profi și Mega Image, într-o zonă liniștită și ușor accesibilă.
🔹 Suprafață teren: 350 mp
🔹 Suprafață construită desfășurată: 236 mp
🔹 Compartimentare:
La parter: Living spațios, bucatarie, camera tehnica(camera provizii), baie, dormitor sau birou, terasa, hol si casa scarii de acces catre etaj.
La etaj: 3 dormitoare( unul matrimonial cu baie proprie,dressing si balcon), baie, hol
🔹 Dotări și finisaje:
Mobilată complet cu mobilier import Spania și Italia, utilată cu electrocasnice premium SMEG, finisaje interioare cu piatră naturală, ceramica de calitate superioara, usi de interior import Spania, tencuială decorativă exterioară de calitate, izolație exterioară eficientă, acoperiș din țiglă ceramică.
🔹 Sisteme și echipamente moderne:
Sistem de răcire cu aer condiționat pe fiecare etaj.
Sistem de detectie si protecție la incendiu
Sistem automat de irigare pentru grădină
Sistem de supraveghere video
Structura de rezistenta cu fundatie pe perna de piatra, stalpi si grinzi cu zidarie pe cadre, placa peste parter si peste etaj! Posibilitate de extindere pe inaltime.
✅ Casă ideală pentru locuire permanentă sau investiție turistică, într-o zonă aflată în continuă dezvoltare, la câteva minute de mers pe jos de plajă și restaurante.
📞 Pentru mai multe detalii sau programarea unei vizionări, vă stăm la dispoziție!
Specificatii
Curent
Apa
Canalizare
Gaz
CATV
Sistem irigatie
Centrala proprie
Aer conditionat
Izolatie Exterior
Vopsea lavabila
Var
Parchet
Gresie
Ferestre PVC
Usa intrare Metal
Usa interior Lemn
Anexe
Dependinte
Bucatarie Mobilata
Bucatarie Utilata
Apometre
Contor gaz
Mobilat Lux
Interfon
Curte
Gradina
Bogdan Anca
0720090392
Esti interesat de aceasta proprietate ?