




























Vila cu 5 camere si teren 500 in Cartier Rezidential Ovidiu Sud, Lacul Siutghiol
Ovidiu
550.000€
Camere
6
Suprafata utila
318.70 mp
Suprafata construita
365 mp
Bai
3
An constructie
2010
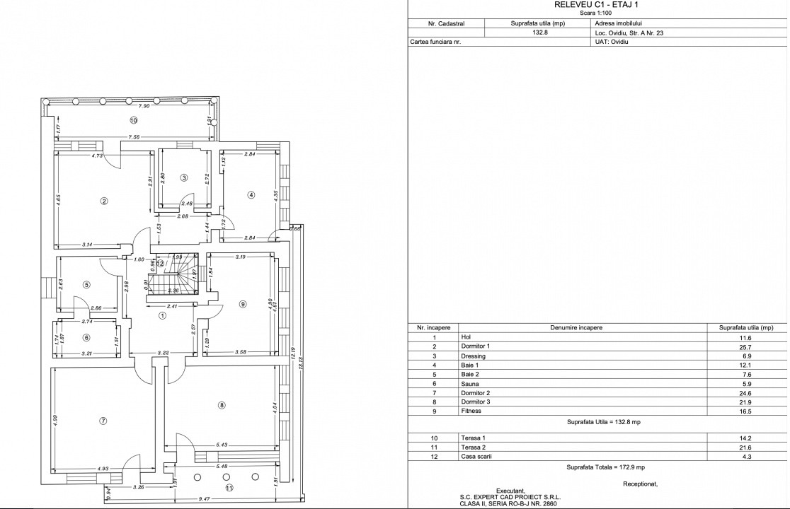
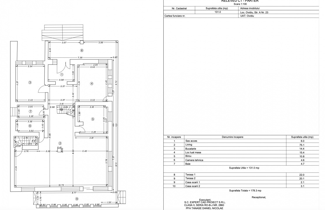
- ID:P6217
- Nr. camere:6
- Nr. dormitoare:4
- S. utila:318.70 mp
- S. terase:77.90 mp
- S. construita:365.00 mp
- S. teren:500.00 mp
- Nr. bucatarii:1
- Nr. bai:3
- Nr. parcari:2
- Nr. garaje:1
- Front stradal:15.00 m
- Nr. fronturi:4
- An constructie:2010
- Structura rezistenta:Beton
- Regim inaltime:D+P+1
Descriere
Vila de vanzare cu 6 camere si garaj subteran in Cartierul Rezidential Ovidiu Sud, in proximitatea Castrului Roman
Suprafață utila totala: 318 mp
Suprafata teren: 500 mp
Amprenta la sol: 178,3 mp
Front stradal: 15 m lungime
Compartimentare: 4 dormitoare, birou, living generos, cameră de dining, bucătărie închisă, 3 băi + demisol.
Regim de inaltime: Demisol+Parter+1 Etaj
Incalzire: centrala proprie si calorifere
Vă prezentăm o vilă spațioasă de vanzare , ce se deosebeşte prin eleganța arhitecturala si suprafetele generoase. Proprietatea este amplasată într-o zonă sigura si linistita, fiind configurată pentru un stil de viață modern și funcțional. Proprietatea se afla la o distanta de 8 minute de intrarea in Orasul Constanta.
Cu 318 mp utili, vila oferă un living amplu, o bucătărie închisă, separeu de dining, birou, 4 dormitoare, 3 bai, hamam și un garaj in demisol util pentru depozitare sau spații tehnice. Garajul beneficiaza de poarta electrica pe telecomanda.
Printre dotari regasim si tamplarie Qfort cu 7 camere , boiler cu capacicate de 200 litri, sistem irigatii si put, hamam, centrala proprie.
Pe terenul de 500 mp este amplasat un foișor și o bucătărie de vară — locul perfect pentru relaxare și activități în aer liber.
O proprietate completă, smart compartimentată și potrivită unei familii care își dorește mai mult spațiu și o zonă liniștită.
Te bucuri de faleza lacului Siutghiol, de Castrul Roman si de Cherhanaua Ovidiu, la 5 minute de casa.
Citeste mai mult
Suprafață utila totala: 318 mp
Suprafata teren: 500 mp
Amprenta la sol: 178,3 mp
Front stradal: 15 m lungime
Compartimentare: 4 dormitoare, birou, living generos, cameră de dining, bucătărie închisă, 3 băi + demisol.
Regim de inaltime: Demisol+Parter+1 Etaj
Incalzire: centrala proprie si calorifere
Vă prezentăm o vilă spațioasă de vanzare , ce se deosebeşte prin eleganța arhitecturala si suprafetele generoase. Proprietatea este amplasată într-o zonă sigura si linistita, fiind configurată pentru un stil de viață modern și funcțional. Proprietatea se afla la o distanta de 8 minute de intrarea in Orasul Constanta.
Cu 318 mp utili, vila oferă un living amplu, o bucătărie închisă, separeu de dining, birou, 4 dormitoare, 3 bai, hamam și un garaj in demisol util pentru depozitare sau spații tehnice. Garajul beneficiaza de poarta electrica pe telecomanda.
Printre dotari regasim si tamplarie Qfort cu 7 camere , boiler cu capacicate de 200 litri, sistem irigatii si put, hamam, centrala proprie.
Pe terenul de 500 mp este amplasat un foișor și o bucătărie de vară — locul perfect pentru relaxare și activități în aer liber.
O proprietate completă, smart compartimentată și potrivită unei familii care își dorește mai mult spațiu și o zonă liniștită.
Te bucuri de faleza lacului Siutghiol, de Castrul Roman si de Cherhanaua Ovidiu, la 5 minute de casa.
Specificatii
Curent
Apa
Canalizare
Gaz
CATV
Acces internet
Centrala proprie
Calorifere
Aer conditionat
Ventiloconvectoare
Izolatie Exterior
Vopsea lavabila
Var
Faianta
Tapet
Parchet
Gresie
Mocheta
Ferestre Termopan
Usa intrare Metal
Usa interior Lemn
Spatiu depozitare
Dressing
Anexe
Bucatarie Mobilata
Bucatarie Utilata
Apometre
Contor gaz
Complet mobilat
Sauna
Gradina
Amalia Cherim
0735258662
Esti interesat de aceasta proprietate ?