







































































Cladire S+P+2+M centrul orasului pe Bld.Mamaia cu 3 apartamente+spatiu comercial
Constanta, Centru
800.000€
Camere
13
Suprafata utila
489 mp
Suprafata construita
600 mp
An constructie
1957
- ID:P5482
- Nr. camere:13
- S. utila:489.00 mp
- S. construita:600.00 mp
- Front stradal:12.00 m
- Comp.:Flexibil
- Nr. bai:6
- Terase:2
- An constructie:1957
- An renovare:2013
- Structura rezistenta:Beton
- Tip imobil:Casa/Vila
- Regim inaltime:S+P+2+M
- Risc seismic:Clasa III
Descriere
Clădire S+P+2+M ultracentrală pe Bld. Mamaia – 3 apartamente generoase + spațiu comercial la parter. Ideală ca reședință pentru familii numeroase, dar și ca investiție sigură cu randament rapid, langa Restaurant Scoica.
Locație: Constanta, Strada Aprodul Purice nr. 1, la intersectia cu bulevardul Mamaia
Suprafață: 489 mp din care terase: 25.52 mp | 🛏️ Dormitoare: 6 | Livingroom : 3 | 🛁 Băi: 6 si un spatiu comercial la parter
Configuratia imobilului:
Subsol – 22 mp
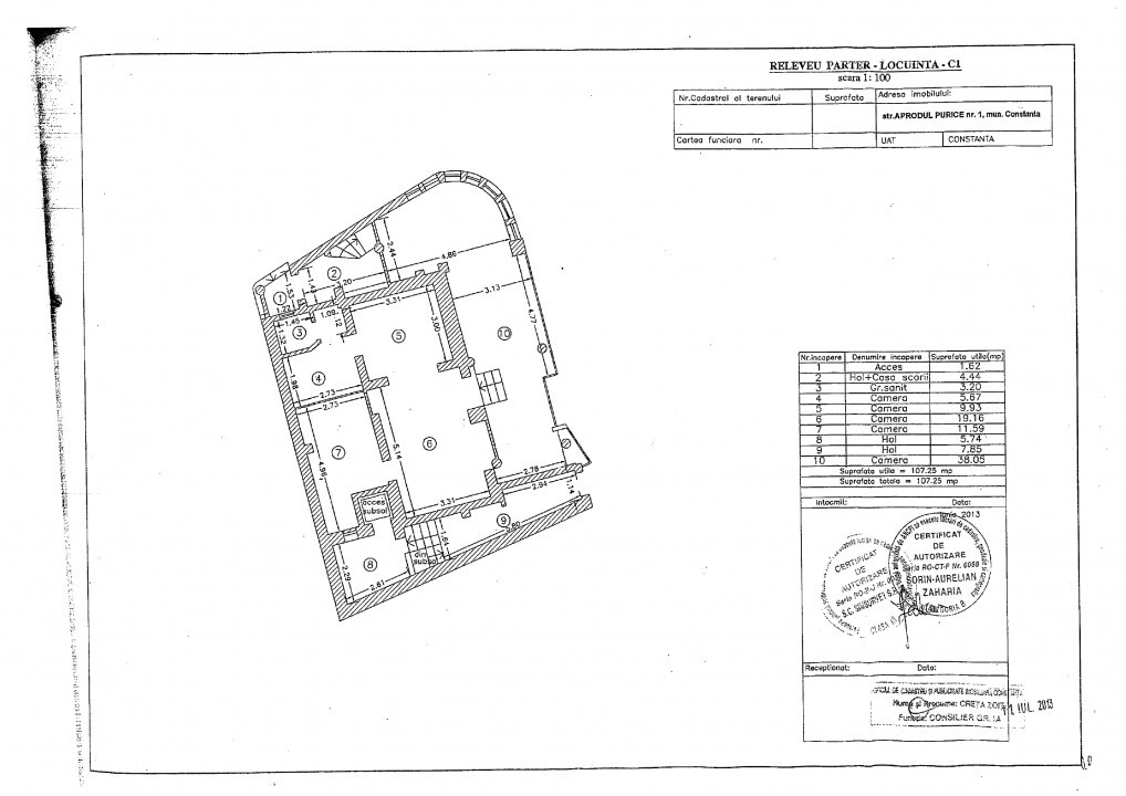
Parter – Spatiu Comercial in suprafata totala de 107.25 mp
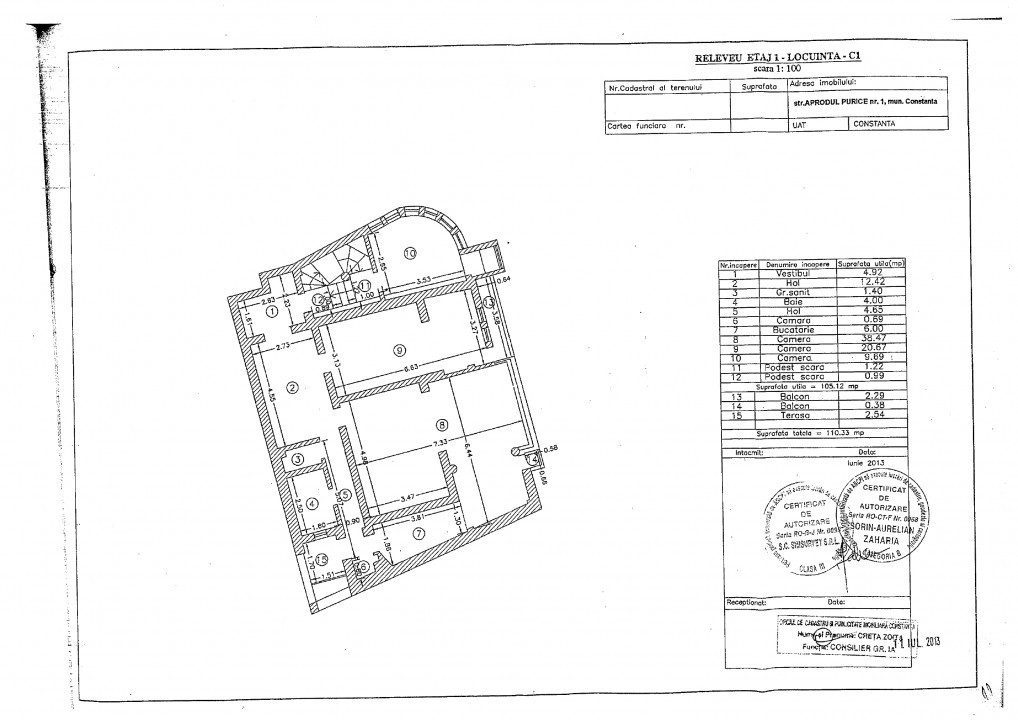
Etajul 1 – Apartament 2 camere cu 2 bai si birou in suprafata totala de 110.33 mp
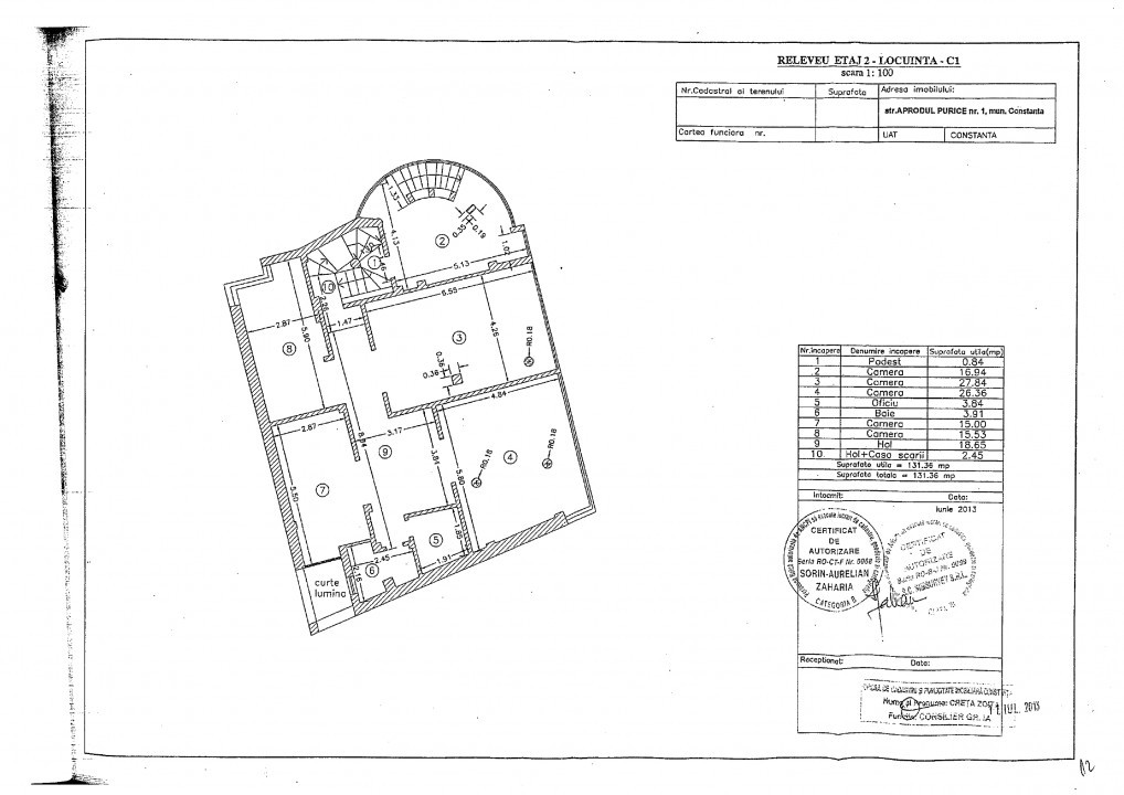
Etajul 2 – Apartament cu 4 camere, o baie si sala de fitness in suprafata totala de 147 mp
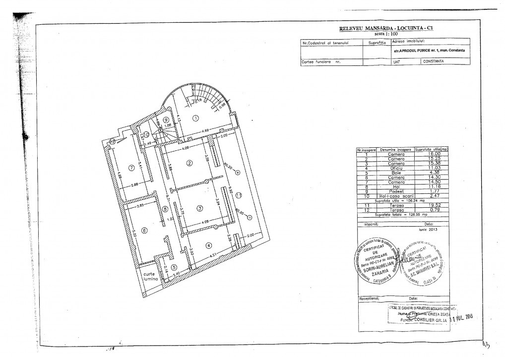
Mansarda – Apartament 3 camere, o baie si terasa spatioasa in suprafata totala de 126.55mp
Preț: 800.000 Euro
Există proprietăți valoroase și proprietăți a căror valoare depășește prețul.
Prețul este ceea ce plătești, valoarea este ceea ce obții. Iar oportunitatea de a obține o astfel de proprietate, în acest oraș, apare foarte rar.
Situata în Constanța, zona Universitatea Ovidius, pe Strada Aprodul Purice, nr. 1, colț cu Bulevardul Mamaia, proprietatea se afla chiar in vecinătatea restaurantului Scoica, într-una dintre cele mai căutate zone.
Construită în 1957, cu o structura de beton armat si zidaria din caramida, casa a fost renovată complet in 2013, fiind una dintre cele mai spectaculoase proprietăți. O astfel de construcție nu mai poate fi replicată astăzi, deoarece nu mai există teren disponibil.
Astăzi, imobilul descris este o reședință. Poate rămâne că atare, pentru o familie ce dorește să locuiască aici, fiind împărțită strategic într-un spațiu comercial ce ne va genera un venit constant, care se află la parter și are intrare separată de cele 3 apartamente ale vilei. Astfel, puteți deține propriul bloc cu un bussniess constant, preluând istoria și utilitatea acestei vile.
În mâinile unui investitor, poate fi transformat într-un imobil de birouri, sediu de companie, afacere de închiriere, centru medical ori ideea ta de bussniess ce poate sa ia viață aici.
Urmărind fotografiile, veți înțelege calitatea construcției și unicitatea proprietății. Poate veți observa sala de sport proprie sau poate mobilierul celebrei case de modă Roche Bobis colecția Tradițional, care se află la etajul 2, ori minunata terasă cu zonă de BBQ de la etajul 3 și vedere frontală către Bulevardul Mamaia.
Aceasta este o proprietate care merită atenția dumneavoastră.
Sună-mă acum și valorifică potențialul uriaș al acestei proprietăți!
Citeste mai mult
Locație: Constanta, Strada Aprodul Purice nr. 1, la intersectia cu bulevardul Mamaia
Suprafață: 489 mp din care terase: 25.52 mp | 🛏️ Dormitoare: 6 | Livingroom : 3 | 🛁 Băi: 6 si un spatiu comercial la parter
Configuratia imobilului:
Subsol – 22 mp
Parter – Spatiu Comercial in suprafata totala de 107.25 mp
Etajul 1 – Apartament 2 camere cu 2 bai si birou in suprafata totala de 110.33 mp
Etajul 2 – Apartament cu 4 camere, o baie si sala de fitness in suprafata totala de 147 mp
Mansarda – Apartament 3 camere, o baie si terasa spatioasa in suprafata totala de 126.55mp
Preț: 800.000 Euro
Există proprietăți valoroase și proprietăți a căror valoare depășește prețul.
Prețul este ceea ce plătești, valoarea este ceea ce obții. Iar oportunitatea de a obține o astfel de proprietate, în acest oraș, apare foarte rar.
Situata în Constanța, zona Universitatea Ovidius, pe Strada Aprodul Purice, nr. 1, colț cu Bulevardul Mamaia, proprietatea se afla chiar in vecinătatea restaurantului Scoica, într-una dintre cele mai căutate zone.
Construită în 1957, cu o structura de beton armat si zidaria din caramida, casa a fost renovată complet in 2013, fiind una dintre cele mai spectaculoase proprietăți. O astfel de construcție nu mai poate fi replicată astăzi, deoarece nu mai există teren disponibil.
Astăzi, imobilul descris este o reședință. Poate rămâne că atare, pentru o familie ce dorește să locuiască aici, fiind împărțită strategic într-un spațiu comercial ce ne va genera un venit constant, care se află la parter și are intrare separată de cele 3 apartamente ale vilei. Astfel, puteți deține propriul bloc cu un bussniess constant, preluând istoria și utilitatea acestei vile.
În mâinile unui investitor, poate fi transformat într-un imobil de birouri, sediu de companie, afacere de închiriere, centru medical ori ideea ta de bussniess ce poate sa ia viață aici.
Urmărind fotografiile, veți înțelege calitatea construcției și unicitatea proprietății. Poate veți observa sala de sport proprie sau poate mobilierul celebrei case de modă Roche Bobis colecția Tradițional, care se află la etajul 2, ori minunata terasă cu zonă de BBQ de la etajul 3 și vedere frontală către Bulevardul Mamaia.
Aceasta este o proprietate care merită atenția dumneavoastră.
Sună-mă acum și valorifică potențialul uriaș al acestei proprietăți!
Specificatii
Curent
Apa
Canalizare
Gaz
CATV
Telefon
Acces internet
Fibra optica
Utilitati in zona
Centrala proprie
Calorifere
Aer conditionat
Control individual AC
Izolatie Exterior
Vopsea lavabila
Faianta
Parchet
Gresie
Ferestre PVC
Ferestre Termopan
Lampi
Spoturi
Exterior cladire
Lumina naturala
Iluminat interior sistem LED
Apometre
Contor caldura
Contor gaz
Complet mobilat
Videointerfon
Irina Verban
0743137247
Esti interesat de aceasta proprietate ?